紀の川市粉河店舗
-
- お問い合わせコードWA01B-D
- 物件タイプ 倉庫 事務所 店舗
- 所在地和歌山県紀の川市粉河941-1
- アクセス JR和歌山線『粉河』駅より徒歩9分
- 賃料 ¥3,278,000ー(税込)
- 敷金 ¥17,880,000-(賃料の6ヶ月分・非課税)
- 礼金 ¥3,278,000-(賃料の1ヶ月分・税込)
-
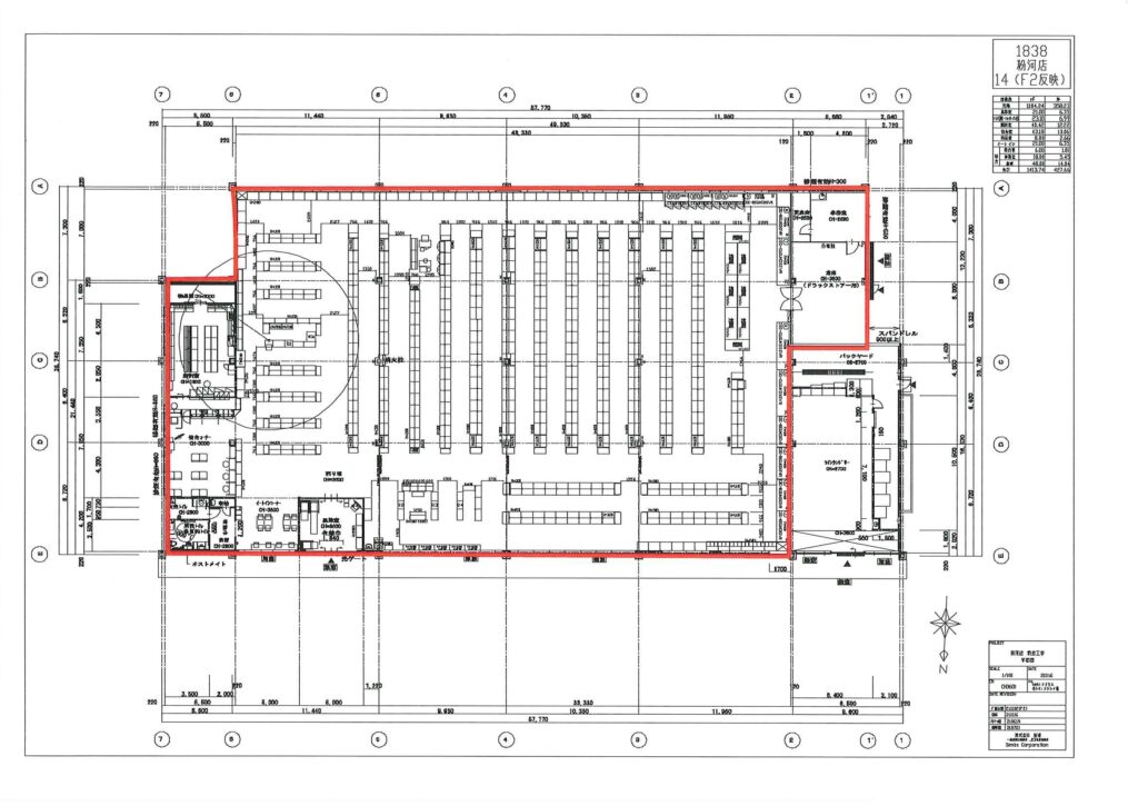
床面積
-
1F
427.66坪
-
合計
427.66坪(1,413.75㎡)
-
- 建物構造 鉄骨造合金メッキ鋼板葺平家建
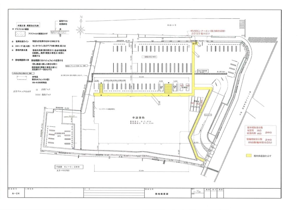
- 敷地面積2069.34坪
- 築年数2021年11月
- 引き渡し日即入居可
-
担当者より
即入居可
・ 駐車スペース有
・ 平屋建て
*駐車台数:70台
*定期借家2041年3月まで
*市街化調整区域
物件周辺地
物件を探す
0120-535-878
お問い合わせ




メールでお問い合わせ