博多区麦野に新築倉庫付事務所【45坪と40坪区画】駐車場9台付 一棟貸も相談可能(FA-922)
-
事務所:OAフロア 24Hセキュリティ 給湯 エアコン有
- お問い合わせコードFA-922
- 物件タイプ 倉庫 事務所
- 所在地福岡市博多区麦野2-16-26
- 賃料 ¥451,000ー(税込)
- 敷金 6ヶ月
- その他経費警備料13,200/月
-
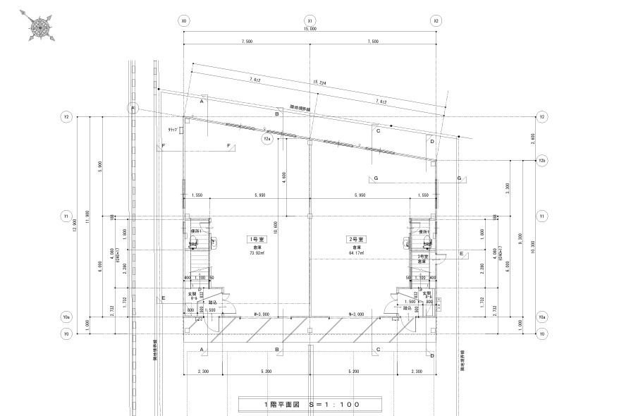
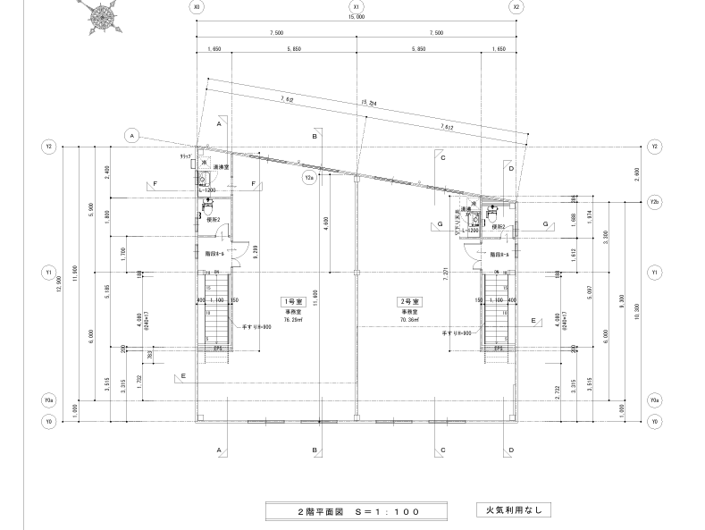
床面積
-
1階
22.36坪
倉庫
-
2階
23.07坪
事務所
-
合計
45.43坪(150.18㎡)
-
- 建物構造 鉄骨造2階建
- 築年数2026年6月中旬予定
- 引き渡し日2026年6月以降
-
担当者より
新築・築浅
・ 駐車スペース有
・ 事務所付き
2号室 1階19.41坪 2階21.28坪 合計40.69坪 賃料407,000円
(FA-922SM)
物件周辺地
物件を探す
0120-535-878
お問い合わせ




メールでお問い合わせ