八尾市永畑町工場・倉庫①
-
- お問い合わせコードOS54B-Y
- 物件タイプ 倉庫 工場
- 所在地大阪府八尾市永畑町1丁目2-52
- アクセス JR関西本線『八尾』駅より徒歩6分
- 賃料 ¥1,265,000ー(税込)
- 敷金 賃料の3ヶ月分
- 礼金 賃料の2ヶ月分
-
床面積
-
1F
156.13坪
-
合計
156.13坪(516.13㎡)
-
- 建物構造 鉄骨造スレート葺平家建
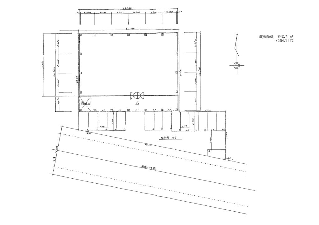
- 敷地面積254.92坪
- 用途地域準工業地域・第一種住居地域
- 築年数1973年2月
- 引き渡し日即入居可
-
担当者より
即入居可
・ 駐車スペース有
・ 平屋建て
・ 準工業地域以上
*駐車場有 *前面道路:約7m
*高速出入り口:近畿自動車道 名古屋・大阪 八尾
*現状有姿 *クレーン動作未確認
*家賃保証会社加入要 *火災保険加入要
物件周辺地
物件を探す
0120-535-878
お問い合わせ


メールでお問い合わせ