イマスSEー1ビル
-
- お問い合わせコードOS35A-Y
- 物件タイプ 倉庫 事務所
- 所在地大阪府摂津市別府3丁目19-8
- アクセス 大阪メトロ今里筋線『井高野』駅より徒歩6分
- 賃料 ¥935,000ー(税込)
- 敷金 ¥4,250,000-
- 礼金 ¥1,870,000-(税込)
-
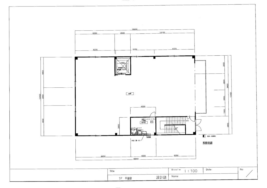
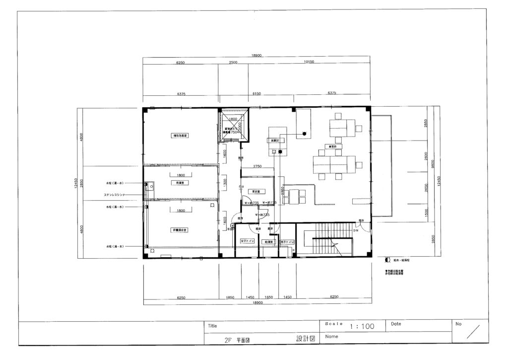
床面積
-
1F
72.81坪
-
2F
73.75坪
-
合計
146.56坪(484.50㎡)
-
- 建物構造 鉄骨造ALC版張2階建
- 敷地面積125.23坪
- 用途地域第一種住居地域
- 築年数平成9年9月
- 引き渡し日令和8年(2026年)5月
-
担当者より
駐車スペース有
・ 事務所付き
*軒高5m
*駐車場有(空地大)
*接道方向:東側 幅員7.4m
*令和5年(2023年)に外壁及び屋根改修工事済
物件周辺地
物件を探す
0120-535-878
お問い合わせ




メールでお問い合わせ